Nhà nhập khẩu Trung Quốc cần mua pallet gỗ
Chinese importers need to buy wooden pallets.
Thi trường Trung Quốc gần đây ngày càng sôi động với các mặt hàng gỗ như gỗ cao su, gỗ thông, gỗ keo, gỗ pallet.... Có rất nhiều nhà sản xuất mặt hàng đồ gỗ, đồ nội thất đang tìm kiếm nguồn sản phẩm gỗ tốt. Công chúng tôi là một trong những địa chỉ tin cậy của các nhà sản xuất có nhu cầu tìm mua các sản phẩm gỗ tốt, có chất lượng. Được thành lập năm 1998, công ty tôi đi lên nhờ sự nỗ lực, khai thác những thế mạnh cũng như xu hướng thị trường đang hướng tới. Nhờ sự tỷ mỉ, cẩn thận trong công việc, cũng như có những đanh giá đúng đắn về thị trường. Công ty tôi đã đưa ra được từng bước đi đúng đắn cho công ty từng bước phát triển.
Là đối tác lâu năm và có nhiều đơn hàng tại Việt Nam, công ty chúng tôi hoàn toàn tin tưởng và mong muốn hợp tác với các doanh nghiệp xuất khẩu gỗ keo tại đây, chúng tôi hợp tác với nhiều doanh nghiệp lớn ở Trung Quốc, công ty chúng tôi luôn tự tin khẳng định về uy tín và chất lượng sản phẩm. Hiện chúng tôi đang cần nhập khẩu mặt hàng pallet gỗ từ Việt Nam. Hy vọng thông qua đơn hàng này, chúng tôi có cơ hội hợp tác với các nhà cung cấp pallet gỗ từ Việt Nam.


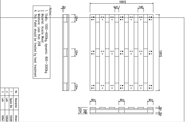
Kích thước khách hàng yêu cầu
Thông tin sản phẩm:
Tên sản phẩm: gỗ pallet ( kích thước như hình vẽ)
Xuất xứ: Việt Nam
Đối với các điều khoản thanh toán : 30 % ( T / T) cho lô hàng đầu tiên trong tổng giá trị và còn lại thanh toán LC
Thông số kỹ thuật chi tiết được trình bày trong bản vẽ
Tải trọng 1000kg - 4000KG
Số lượng đặt hàng là 120.000 chiếc / năm
Nếu bạn có thể cung cấp cho chúng tôi, xin cung cấp cho chúng tôi một giá cả cạnh tranh , để chúng ta có thể có một hợp tác lâu dài
Phương thức thanh toán : LC
Thông tin nhà nhập khẩu:
Người liên hệ: Man...
Quốc gia: Trung Quốc
Điện thoại: 0086-756...
Di động : 86-135...
E-mail:info...
| Other information | |
|---|---|
| Target price | 0,00 $/ FOB Price |
14/04/2014 03:18
4082 View
Liên hệ với khách hàng ngoại